Aktuell

MFH Gotthardstrasse 10, Thalwil

Visualisierung Gebäude
Visualisierung Gebäude
Bildquelle: E. Wanger AG Architekten HTL
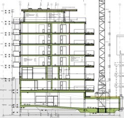
Querschnitt Gebäude
Querschnitt Gebäude
Baugrubensicherung
Baugrubensicherung
Baugrubensicherung mit Kran
Baugrubensicherung mit Kran
Abschluss Rohbau
Abschluss Rohbau

Projekt # 15143


MFH Gotthardstrasse 10, Thalwil, 2018-2019


Beim vorliegenden Projekt handelt es sich um einen Ersatzneubau mit Tiefgarage, Gewerbe und Wohnungen. Die insgesamt 21 Wohnungen befinden sich im 1. UG bis 5. Obergeschoss. Das Gewerbe befindet sich im Erdgeschoss. Im 2. UG befindet sich die Einstellhalle, im 3. UG sind die Technikzentrale und Kellerabteile. Der Hauptzugang erfolgt über die hangseitig liegende Gotthardstrasse, die Zufahrt zur Tiefgarage erfolgt über die talseitig verlaufende Beckerstrasse bzw. über den Bahnweg.

Baugrube

Für die Sicherung der bis 10m tiefen Baugrube gegen die Gotthardstrasse, wurde eine mehrfach rückverankerte und über Eck verspriesste Rühlwand realisiert. Die seitlichen Bereiche wurden mit einer mit Bodennägeln gesicherten Rühlwand gehalten, welche zusätzlich als Unterfangung der bestehenden Umgebungsmauer diente.

Fundation

Die Fundation des Gebäudes erfolgt flach in den tragenden Baugrund.

Tragsystem

Die Tragstruktur des Gebäudes wurde in der Massivbauweise realisiert (tragenden Betonwände, vorfabrizierten Stützen aus hochfestem Beton, tragende Mauerwerkswände). Die Decken sind als Flachdecken in Stahlbeton ausgeführt. Die Loggias sind komplett mit Kragplatten thermisch abgetrennt. Ein grosser Teil der Tiefgaragendecke dient als eine Abfangdecke für das Hauptgebäude.

Leistungen

Vorprojekt bis und mit Realisierung inkl. Baukontrollen.





Bauherrschaft: Hans Ochsner


Gesamtbausumme: CHF 8 Mio.
Bearbeitete Bausumme: CHF 2 Mio.

Umbautes Volumen: 8'400 m3
Geschossfläche: 2'600 m2

Wohnungen: 21
Parking: 14

Visualisierung Gebäude
Visualisierung Gebäude
Bildquelle: E. Wanger AG Architekten HTL
Querschnitt Gebäude
Querschnitt Gebäude
Baugrubensicherung
Baugrubensicherung
Baugrubensicherung mit Kran
Baugrubensicherung mit Kran
Abschluss Rohbau
Abschluss Rohbau

Projekt # 15143


MFH Gotthardstrasse 10, Thalwil, 2018-2019


Beim vorliegenden Projekt handelt es sich um einen Ersatzneubau mit Tiefgarage, Gewerbe und Wohnungen. Die insgesamt 21 Wohnungen befinden sich im 1. UG bis 5. Obergeschoss. Das Gewerbe befindet sich im Erdgeschoss. Im 2. UG befindet sich die Einstellhalle, im 3. UG sind die Technikzentrale und Kellerabteile. Der Hauptzugang erfolgt über die hangseitig liegende Gotthardstrasse, die Zufahrt zur Tiefgarage erfolgt über die talseitig verlaufende Beckerstrasse bzw. über den Bahnweg.

Baugrube

Für die Sicherung der bis 10m tiefen Baugrube gegen die Gotthardstrasse, wurde eine mehrfach rückverankerte und über Eck verspriesste Rühlwand realisiert. Die seitlichen Bereiche wurden mit einer mit Bodennägeln gesicherten Rühlwand gehalten, welche zusätzlich als Unterfangung der bestehenden Umgebungsmauer diente.

Fundation

Die Fundation des Gebäudes erfolgt flach in den tragenden Baugrund.

Tragsystem

Die Tragstruktur des Gebäudes wurde in der Massivbauweise realisiert (tragenden Betonwände, vorfabrizierten Stützen aus hochfestem Beton, tragende Mauerwerkswände). Die Decken sind als Flachdecken in Stahlbeton ausgeführt. Die Loggias sind komplett mit Kragplatten thermisch abgetrennt. Ein grosser Teil der Tiefgaragendecke dient als eine Abfangdecke für das Hauptgebäude.

Leistungen

Vorprojekt bis und mit Realisierung inkl. Baukontrollen.





Bauherrschaft: Hans Ochsner


Gesamtbausumme: CHF 8 Mio.
Bearbeitete Bausumme: CHF 2 Mio.

Umbautes Volumen: 8'400 m3
Geschossfläche: 2'600 m2

Wohnungen: 21
Parking: 14